CFS Transparent logo cropped
Your cold form steel building solution for all building types, building for the future

Design Modifications

Transforming Architectural Plans into CFS Building Systems

At Well Done 1 Homes, we specialize in seamlessly integrating architectural plans into Cold-Formed Steel (CFS) building systems, offering a versatile and efficient solution for your construction projects. Whether you already have architectural plans in hand or require assistance in designing a new project, our comprehensive services have you covered.

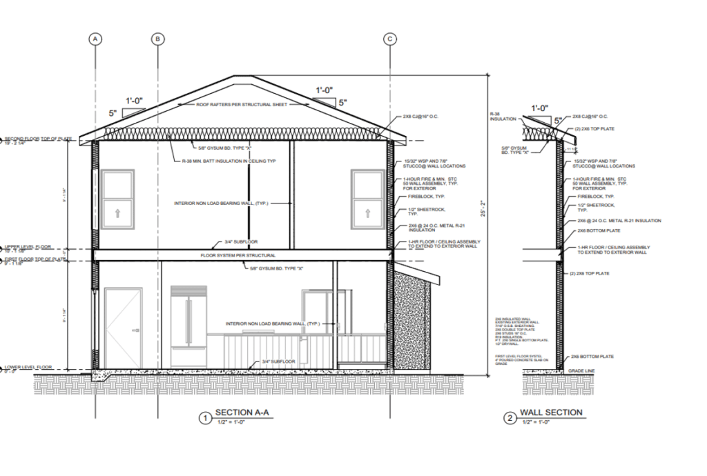
Framing plans

Utilizing Any Architectural Plans: With our expertise in CFS construction, we can adapt to any architectural plans, regardless of complexity or design specifications. From roof trusses to interior walls, our team can seamlessly translate your architectural vision into a CFS building system, ensuring precision and efficiency at every step.

Customization and Modification: We understand that every project is unique, which is why we offer customization and modification options for our CFS building designs. Whether you want to modify one of our existing designs or create a completely customized plan, our team will work closely with you to bring your vision to life.

Full Design Services: In addition to adapting existing architectural plans, we also offer comprehensive design services for clients starting from scratch. Our team of experienced designers can collaborate with you to develop a new project design tailored to your specific needs, preferences, and budget.

Pre-Engineering Analysis: Before engaging a structural engineer, our team conducts a thorough pre-engineering analysis to ensure that the design aligns with local building codes and zoning requirements. This proactive approach allows us to address any potential issues early in the process, saving time and minimizing delays.

Benefits of CFS Building Systems

Choosing a CFS building system offers numerous benefits

  1. Faster Construction: CFS construction allows for quicker assembly compared to traditional methods, reducing overall project timelines.
  2. Cost-Effectiveness: With reduced labor and material costs, CFS building systems offer a cost-effective solution for construction projects.
  3. Design Flexibility: CFS offers versatility in design, allowing for customized layouts and architectural features.
  4. Durability and Strength: CFS structures are highly durable and resistant to pests, fire, and adverse weather conditions.
  5. Sustainability: CFS construction is environmentally friendly, with minimal waste generation and high recyclability.

Partner with Well Done 1 Homes
Whether you’re starting with existing architectural plans or need assistance in designing a new project, Well Done 1 Homes is your trusted partner in CFS construction. Contact us today to learn more about how we can transform your architectural vision into reality with our innovative building solutions.

Call us today

949-565-6345

Have a Question?

info@welldone1kithomes.com